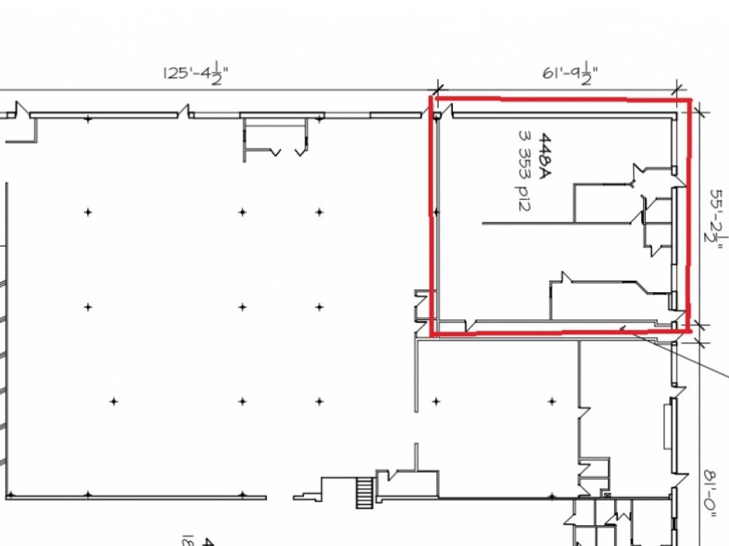
448 rue des Alleghanys, Québec – Espace industriel polyvalent d’environ 3 353 pi² - À louer
| Numéro de l'annonce | 9197 |
|---|---|
| ID | N/D |
| Prix | - |
| Pièces | 0 |
| Type | Espace industriel |
| Catégorie | N/D |
| Taille du lot | - |
|---|---|
| Année de construction | - |
| Superficie | 3 353,00pi2 |
| Étages | 0 |
| Stationnement | Disponibles |
| Sous-location? | Non |
Description
Situé dans le secteur industriel de Beauport, ce local d’environ 3 353 pi² propose une configuration polyvalente qui conviendra à une entreprise à la recherche de fonctionnalité et d’accessibilité. Le bâtiment se distingue par sa simplicité efficace, idéal pour des opérations industrielles, d’entreposage ou de distribution légère.
Idéal pour un atelier, distributeur ou entreprise ayant besoin d’entreposage
Fonctionnalités
Une grande aire ouverte permettant un aménagement sur mesure selon vos besoins d’opérations.
Porte de garage d’environ 10 pieds de haut
Porte de garage d’environ 8 pieds
Un bureau fermé
Une salle d’eau
Hauteur libre d’environ 11-12 pieds
Il a comme avantage les points suivants
Zone de stationnement pour le locataire
Prise de possession juillet 2026
Zonage industriel permis
Secteur intéressant pour :
Proximité de l’autoroute
Dans le parc industriel de Beauport
Grille de zonage :
https://carte.ville.quebec.qc.ca/GrillesZonage/HandlerZonage.ashx?52106Ip
Ce n’est pas le local idéal ?
Contactez nous, plusieurs locaux ne sont pas affichés
Chez Location BCI, nous sommes spécialisés dans la location de locaux commerciaux adaptés aux besoins de votre entreprise. Que vous soyez à la recherche d’un local à louer, d’un bureau à louer, ou d’un local industriel à louer, notre équipe professionnelle est là pour vous accompagner et cela rapidement.
Si le local que vous consultez ne correspond pas parfaitement à vos attentes, pas de souci! Nous mettons tout en œuvre pour trouver le meilleur espace pour votre entreprise grâce à notre expertise, notre réseau et notre rapidité d’action.
Notre mission est simple : vous offrir un service personnalisé, efficace et axé sur vos besoins spécifiques, afin de garantir une expérience de location fluide et sans tracas. Avec Location BCI, vous avez la certitude de collaborer avec une agence professionnelle qui comprend l’importance d’un local parfaitement adapté à votre réussite.
Contactez-nous dès aujourd’hui pour explorer nos options de locaux commerciaux à louer à Québec et laissez-nous vous guider vers l’espace idéal pour votre entreprise.






