Projet industriel à développer à Saint-Augustin - À louer
| Numéro de l'annonce | 9279 |
|---|---|
| ID | N/D |
| Prix | - |
| Pièces | 0 |
| Type | Espace industriel |
| Catégorie | N/D |
| Taille du lot | - |
|---|---|
| Année de construction | - |
| Superficie | 35 000,00pi2 |
| Étages | 0 |
| Stationnement | - |
| Sous-location? | Non |
Description
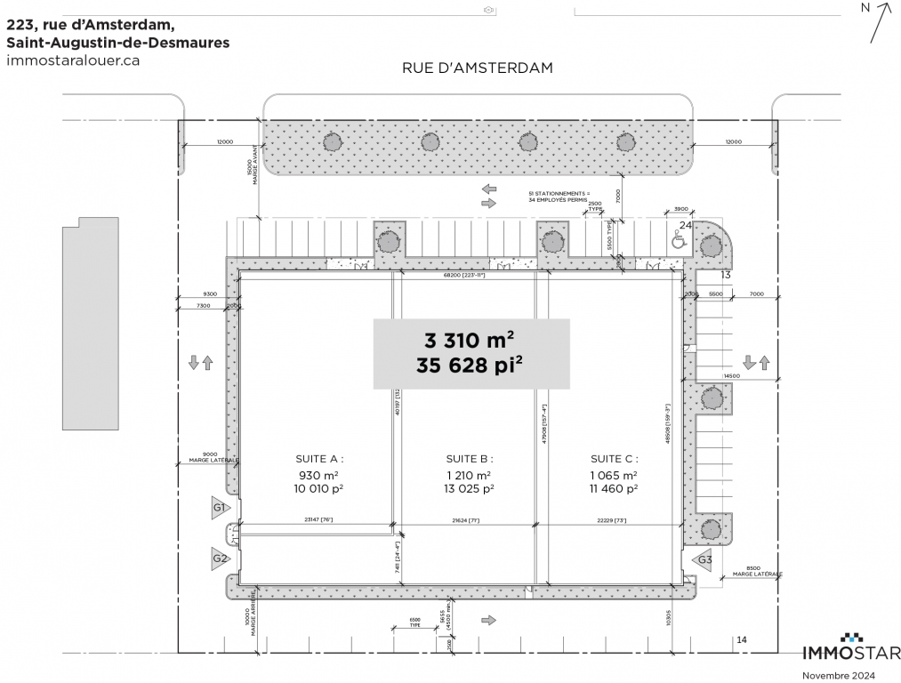
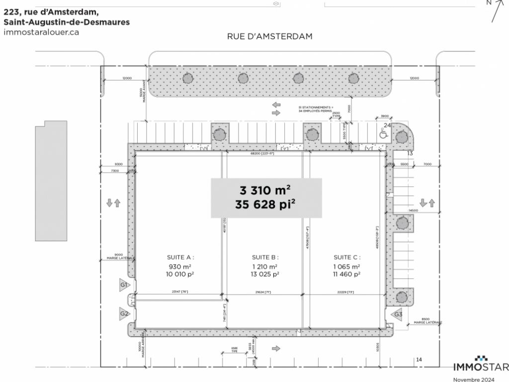
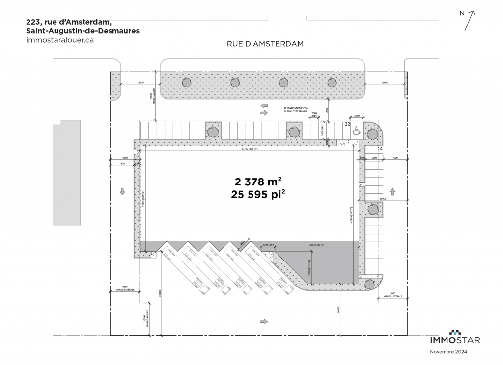
Projet industriel à développer à Saint-Augustin-de-Desmaures, offrant une superficie modulable pouvant atteindre 35 000 pi², conçue pour s’adapter à vos besoins d’implantation.
Situé dans un secteur industriel stratégique, le Projet Amsterdam propose des espaces à construire sur mesure, permettant aux entreprises d’optimiser leurs opérations de production, de logistique ou d’entreposage dans un environnement performant et accessible.
Grâce à sa flexibilité et à son emplacement de choix, ce projet représente une opportunité idéale pour les entreprises manufacturières, logistiques et les PME en croissance à la recherche d’un espace fonctionnel et évolutif.
• Superficie jusqu’à 35 000 pi² (modulable)
• Emplacement stratégique à Saint-Augustin-de-Desmaures
• Construction adaptée à vos besoins
• Secteur industriel en pleine croissance
• Accès rapide aux principaux axes routiers
• Idéal pour logistique, entreposage et production
• Disponible dès maintenant pour développement
Contactez-nous pour obtenir plus d’information ou pour planifier votre implantation.
Découvrez le projet sur le site web d’Immostar :
immostar.ca/projet-amsterdam
Un espace signé Immostar.
Caractéristiques
- Commodités/Aménagement/Équipement
- Proximité des autoroutes
- Quai de chargement
- Stationnement






